In der Sitzung des Kreistages am 24.09.2018 wurde der Beschluss gefasst, dass die notwendigen Neubaumaßnahmen der Beruflichen Schulen Groß-Gerau auf den Weg gebracht werden.
Im Vorfeld der Sitzung überreichte die Vorsitzende des Schulelternbeirats, Martina Sapper, zusammen mit 50 Schülerinnen und Schülern Herrn Landrat Will eine Petition mit fast 1000 Unterschriften, die der Dringlichkeit nochmals Nachdruck verliehen haben.
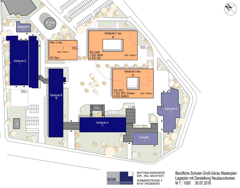
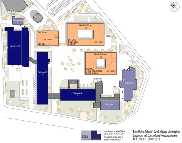
Dem Beschluss liegt eine eineinhalbjährige Phase der Bedarfsermittlung zugrunde, in der die Schulleitung, der Fachbereich Gebäudemanagement des Kreises und das Architektenbüro BZM ein Raumprogramm erarbeitet haben. Das Raumprogramm berücksichtig aktuelle pädagogische Standards und macht die Schule zukunftsfähig.
Die gesamte Schulgemeinde ist sehr dankbar darüber, dass die Notwendigkeit des Neubaus über alle politischen Fraktionen Konsens war.
Durch die Unterstützung der Eltern- und Schülerschaft sowie der Kreishandwerkerschaft konnten bereits im Vorfeld zielführende Gespräche mit den Verantwortlichen beim Schulträger geführt werden, die letztlich zu diesem guten Ergebnis führten.
Der Neubau ist ein Beitrag dazu, dass Schülerinnen und Schüler eine tragfähige berufliche Handlungskompetenz erhalten und wir unseren Beitrag zur beruflichen Bildung und Ausbildung besser umsetzen können.
Mit Freude nimmt die Schulgemeinde den Beschluss zur Kenntnis. Durch die geplante Kooperation mit der KVHS wird eine breite und solide Basis für die berufliche Bildung und Weiterbildung im Kreis geschaffen.

